Nachnutzungskonzepte für fünf leerstehende Geschäftslokale an der Hauptstraße in Pernitz

Filip Marcetic

Die Arbeit entstand im Rahmen des Themendiploms „Neue Sichten. Visionen für Leerstände in Pernitz, Niederösterreich“, bei dem 2024 insgesamt zehn Revitalisierungsprojekte erarbeitet und der lokalen Bevölkerung in einer Ausstellung präsentiert wurden.

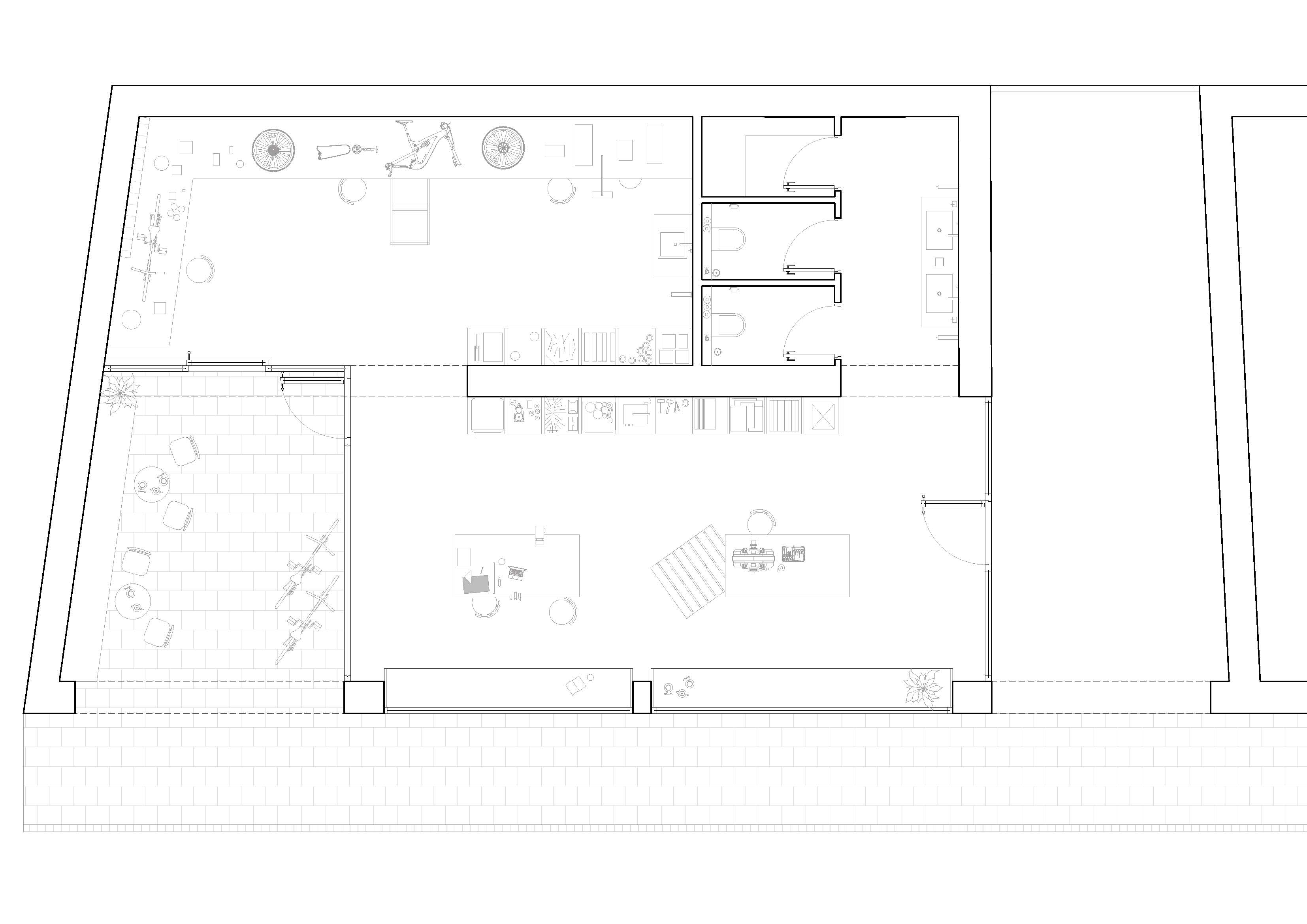
Die vorliegende Arbeit widmet sich dem landesweit verbreiteten Problem leer stehender Geschäftslokale in Ortskernen. Ausgehend von der These, dass relationale Kunst als Vorbild für architektonische Lösungen dienen kann, werden fünf unterschiedliche Nutzungsvorschläge entwickelt – darunter ein Mikro-Motel, ein Reparaturcafé und ein Kinoklub. Die zugrunde liegende Strategie folgt dem Prinzip der räumlichen Verdichtung: Der Entwurf wirkt über seine praktische Dimension hinaus als visuelles Signal, das der Hauptstraße neues Leben verleiht.

Alle hier hochgeladenen Inhalte sind das eigene Werk der Absolventin oder des Absolventen.



Studiengang
Architektur
Betreuer*in
Senior Scientist Dipl.-Arch. Dr.techn. Lorenzo De Chiffre
Institut für Architektur und Entwerfen
Forschungsbereich Hochbau und Entwerfen
Abschluss
10/2024