Ortskernentwicklung Ehrenhausen

Konzept für zukunftsfähigen Städtebau im ruralen Raum

Teresa Gross

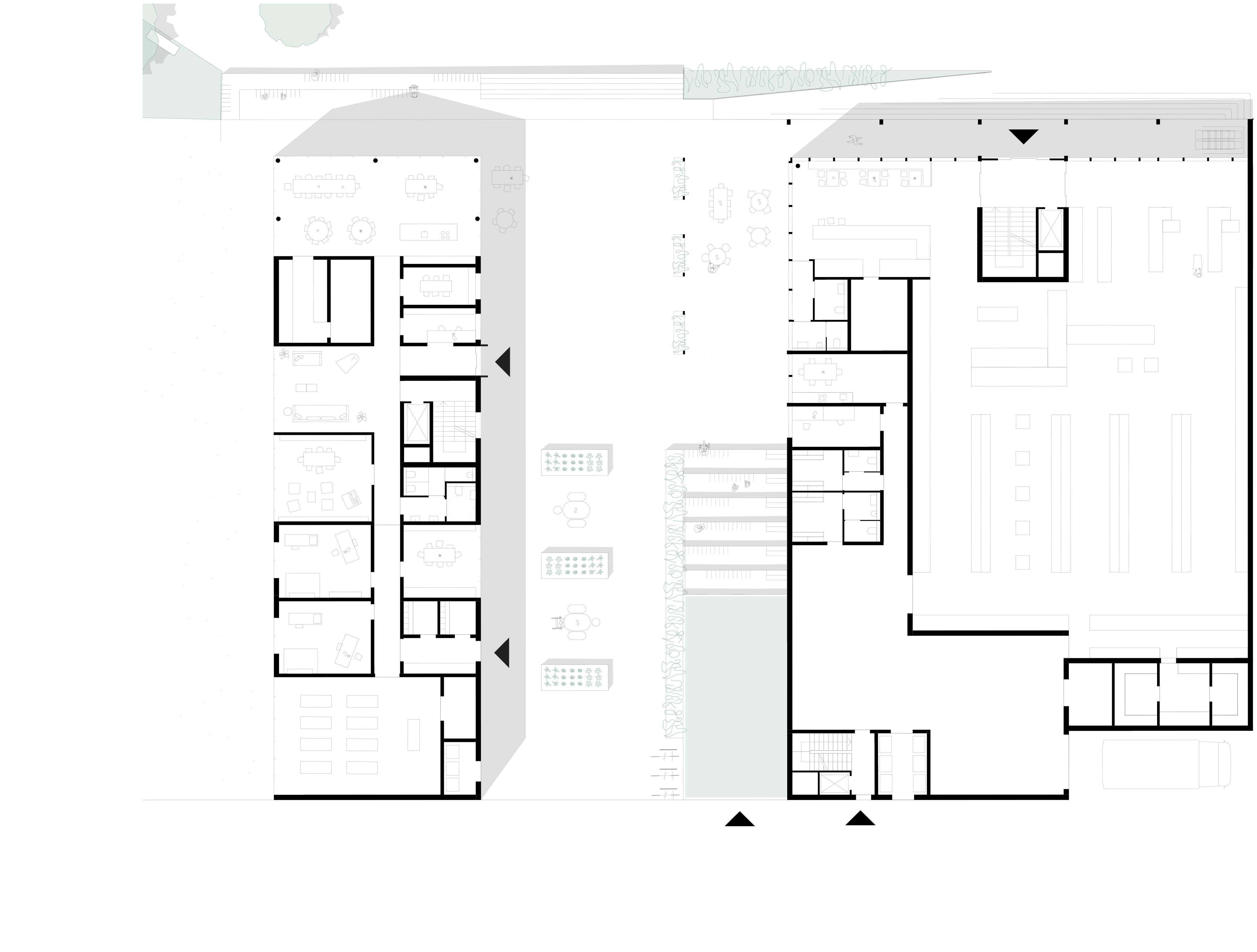
Historisch stellte der Ortskern einen zentralen Treffpunkt dar, den Menschen aufsuchten, um ihre Grundbedürfnisse zu decken. Im städtebaulichen Kern waren wichtige Funktionen des täglichen Lebens angesiedelt, die das Zentrum wie ein „Herz“ am Leben hielten. Heute hat sich dieses Bild gewandelt: Verödende Ortskerne, insbesondere in peripheren Gemeinden, sind zunehmend Thema gesellschaftlicher Diskussionen. Die Gründe dafür sind unterschiedlich und vielschichtig – demografischer Wandel, jahrzehntelange monofunktionale Siedlungserweiterung an den Ortsrändern und die zunehmende Automobilisierung spielen dabei eine wesentliche Rolle.Auch für den steirischen Ort Ehrenhausen stellt sich diese Frage. Der in dieser Arbeit entwickelte Masterplan für die Ortskernbelebung basiert auf einer umfassenden Analyse der Region und des Ortes. Dabei wurden geografische, ökonomische, infrastrukturelle und demografische Aspekte genauer betrachtet. Weiters stützt sich der Masterplan auf das Örtliche Entwicklungskonzept (ÖEK) der Gemeinde Ehrenhausen sowie auf Interviews mit lokalen Entscheidungsträger_innen. Darauf aufbauend wurden Ziele definiert, welche schließlich die Grundlage für die darauffolgenden Maßnahmen bilden. Unter dem Motto „Innen- vor Außenentwicklung“ werden eine Verdichtung des Ortskerns vorgenommen, der öffentliche Raum umgestaltet und aufgewertet sowie ein neues Verkehrskonzept erarbeitet. Darüber hinaus werden noch viele kleinere Maßnahmen gesetzt. Die Summe aller Maßnahmen ergibt ein kohärentes Gesamtbild und gibt dem Ort Ehrenhausen ein neues, starkes „Herz“. Um eine Vision für ein nachhaltigeres Ehrenhausen in naher Zukunft greifbar zu machen, wird der Entwurf mittels Plandarstellungen, Grafiken und Erläuterungen präsentiert.Alle hier hochgeladenen Inhalte sind das eigene Werk der Absolventin oder des Absolventen.






Studiengang
Architektur
Betreuer*in
Ass.Prof. Arch. Dipl.-Ing. Dr.techn. Markus Tomaselli
Institut für Städtebau, Landschaftsarchitektur und Entwerfen
Forschungsbereich Städtebau und Entwerfen
Abschluss
04/2024